- 80 m²
- 891 m²
- 2
- C
Omschrijving
Midden in de natuur, op de geliefde " De Noenes" te Haaren, staat deze charmante vrijstaande woning op een royaal perceel van circa 891 m². Hier woon je heerlijk vrij, met volop groen en rust om je heen. De Noenes staat bekend om zijn uitgestrekte natuur, afwisselende landschappen en mooie wandel- en fietspaden — een prachtige omgeving voor wandelaars, fietsers en natuurliefhebbers.
De woning beschikt daarnaast over een eigen carport met oprit en een vrijstaande stenen berging, waardoor er volop ruimte is voor parkeren, opslag en hobby’s. Een ideale plek voor wie landelijk wil wonen met veel privacy, terwijl voorzieningen in Haaren en omliggende dorpen binnen handbereik liggen.
Woonoppervlakte 50m²,
Overige inpandige ruimte 30m² Verdieping
Externe bergruimte 9m²
Inhoud 291m³
Indeling
Begane grond
Via de entree kom je binnen in de hal met toegang tot de keuken, de badkamer, de trapopgang naar de verdieping en de woonkamer. Vanuit de hal stap je de sfeervolle woonkamer binnen. Deze ruimte is prettig licht dankzij de grote raampartijen en de openslaande deuren naar de tuin. Hierdoor ontstaat een mooie verbinding met buiten en geniet je van een vrij uitzicht op het groen.
Voor extra comfort is de begane grond voorzien van vloerverwarming en daarnaast zorgt de aanwezige hout haard voor extra sfeer en warmte tijdens de koudere dagen.
De keuken heeft een moderne en verzorgde uitstraling met een kookeiland voorzien van een elektrische kookplaat en afzuigkap. Daarnaast beschikt de keuken over diverse inbouwapparatuur, waaronder een combi-oven/combimagnetron, een koel-vriescombinatie en een vaatwasser, waardoor het een praktische en complete plek is om te koken. Vanuit de keuken is er bovendien toegang tot de tuin via de openslaande deuren, wat zorgt voor veel lichtinval en een prettige verbinding tussen binnen en buiten.
Op de begane grond bevindt zich tevens de badkamer, praktisch ingedeeld met een douche, toilet en een wastafelmeubel. Het aanwezige raam zorgt voor prettig daglicht en natuurlijke ventilatie.
De woning is voorzien van houten kozijnen met dubbel glas, die in 2025 voor het laatst zijn geschilderd, wat bijdraagt aan het verzorgde onderhoudsniveau van de woning. Samen zorgt dit voor een comfortabele en lichte leefomgeving op de begane grond.
Eerste verdieping
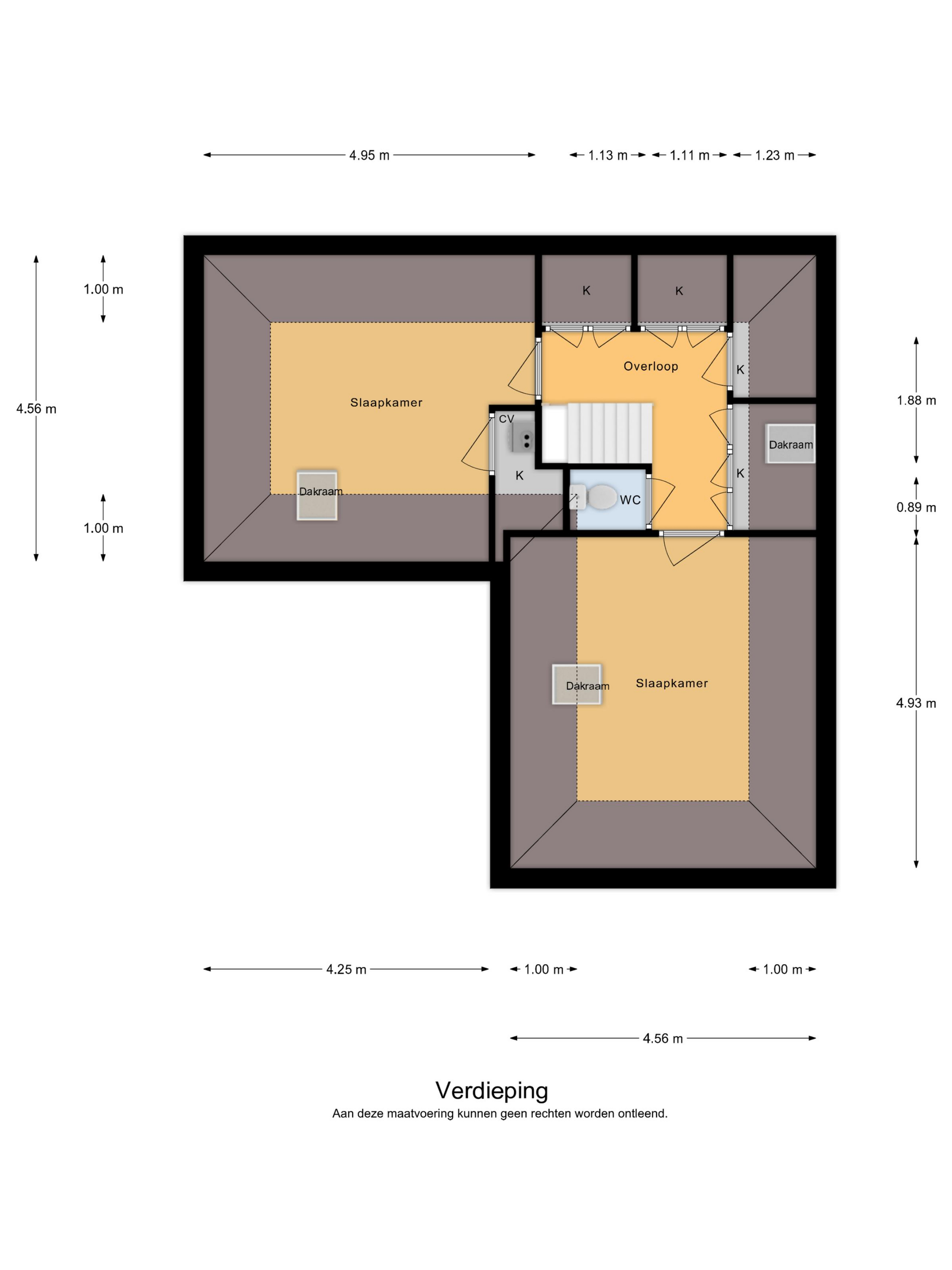
Via de trap bereik je de overloop van de eerste verdieping. Hier valt direct op dat er praktische inbouwkasten aanwezig zijn, met daarin de aansluiting van de wasmachine, en ruimte voor linnengoed of andere spullen. Op de overloop bevindt zich tevens een separate toiletruimte.
De verdieping beschikt over twee slaapkamers, beide met een prettige lichtinval dankzij de aanwezige dakramen. De kamers hebben een sfeervolle uitstraling door de schuine dakvlakken en zijn afgewerkt met een lichte houtlook vloer, wat zorgt voor een ruimtelijk en verzorgd geheel. In een kamer is in de vast kast de cv-ketel opgesteld.
De grootste slaapkamer biedt voldoende ruimte voor een tweepersoonsbed en kasten en heeft een rustige, comfortabele sfeer. De tweede slaapkamer is eveneens goed van formaat en kan uitstekend dienen als slaapkamer, werkruimte of hobbykamer.
Door de slimme indeling, de aanwezige bergruimte op de overloop en de twee volwaardige kamers is deze verdieping praktisch en veelzijdig in gebruik.
Tuin
De woning beschikt over een ruime en fraai aangelegde achtertuin, door de grootte van de tuin en de ligging kun je hier al vroeg op de dag van de zon genieten. Met een perceel van circa 891 m² biedt de tuin volop ruimte, rust en privacy.
Direct aan de woning bevindt zich een ruim terras, een fijne plek om te zitten en te genieten van het buitenleven. Tevens staat aan de straatkant een vrijstaande stenen berging en is er een poort aanwezig, wat praktisch is voor het stallen van bijvoorbeeld fietsen of tuingereedschap en voor een handige achterom.
Verder is de tuin voorzien van een gezond gazon, fraaie dakplatanen die voor een karaktervolle uitstraling zorgen en een sfeervolle put, die is omgebouwd tot BBQ plaats, wat een charmant detail toevoegt aan het geheel. Dankzij de royale afmetingen en de groene inrichting is dit een heerlijke plek voor tuinliefhebbers, kinderen of gewoon om in alle rust van het buitenleven te genieten.
Omgeving
De woning ligt in het buitengebied van Haaren, aan de rustige Blazeveldweg, direct bij natuurgebied De Noenes. Dit gebied staat bekend om zijn bossen, zandpaden en groene landschappen en is een geliefde plek voor wandelaars, fietsers en natuurliefhebbers. Vanuit de woning wandel of fiets je zo de natuur in en ervaar je dagelijks het echte buitenleven.
Ondanks de rustige en groene ligging bevindt de woning zich op korte afstand van de dorpskern van Haaren, waar diverse voorzieningen zoals winkels, basisscholen en sportfaciliteiten te vinden zijn. Ook omliggende plaatsen zoals Oisterwijk, Vught en Boxtel zijn snel bereikbaar.
De bereikbaarheid is bovendien uitstekend. Binnen enkele minuten bereik je de uitvalswegen richting de A2 en A65, waardoor steden als ’s-Hertogenbosch, Tilburg en Eindhoven goed bereikbaar zijn. Ook het openbaar vervoer is in de omgeving aanwezig met busverbindingen naar omliggende dorpen en steden, terwijl de treinstations van Oisterwijk en Boxtel op korte afstand liggen. Hierdoor combineert deze locatie het rustige buitenleven met een goede bereikbaarheid van voorzieningen en steden.
Bijzonderheden;
- Vloerverwarming begane grond;
- Buitengebied van Haaren, de Noenes;
- Royaal perceel;
- Oplevering in overleg;
*NOTE
De gemeente heeft een wijziging van het huidige bestemmingsplan in procedure gebracht waarmee permanente bewoning wordt geformaliseerd en een verruiming van de bouwmogelijkheden tot 90m2 en480m3 inhoud en 7m bouwhoogte wordt mogelijk gemaakt.
FINANCIERING:
Hoewel de gemeente een bestemmingsplan in procedure heeft gebracht waarin de permanente bewoning op de Noenes wordt gelegaliseerd is de officiële huidige bestemming van de woning nog recreatief.
Zolang het nieuwe bestemmingsplan nog in procedure is en dus nog niet van kracht is, is het mogelijk dat de woning niet volledig middels een hypothecaire geldlening gefinancierd kan worden. Voor recreatiewoningen gelden immers andere financieringsregels. Wij adviseren u daarom voor een bezichtiging te onderzoeken of u deze woning zou kunnen financieren.
Toon meer
De woning beschikt daarnaast over een eigen carport met oprit en een vrijstaande stenen berging, waardoor er volop ruimte is voor parkeren, opslag en hobby’s. Een ideale plek voor wie landelijk wil wonen met veel privacy, terwijl voorzieningen in Haaren en omliggende dorpen binnen handbereik liggen.
Woonoppervlakte 50m²,
Overige inpandige ruimte 30m² Verdieping
Externe bergruimte 9m²
Inhoud 291m³
Indeling
Begane grond
Via de entree kom je binnen in de hal met toegang tot de keuken, de badkamer, de trapopgang naar de verdieping en de woonkamer. Vanuit de hal stap je de sfeervolle woonkamer binnen. Deze ruimte is prettig licht dankzij de grote raampartijen en de openslaande deuren naar de tuin. Hierdoor ontstaat een mooie verbinding met buiten en geniet je van een vrij uitzicht op het groen.
Voor extra comfort is de begane grond voorzien van vloerverwarming en daarnaast zorgt de aanwezige hout haard voor extra sfeer en warmte tijdens de koudere dagen.
De keuken heeft een moderne en verzorgde uitstraling met een kookeiland voorzien van een elektrische kookplaat en afzuigkap. Daarnaast beschikt de keuken over diverse inbouwapparatuur, waaronder een combi-oven/combimagnetron, een koel-vriescombinatie en een vaatwasser, waardoor het een praktische en complete plek is om te koken. Vanuit de keuken is er bovendien toegang tot de tuin via de openslaande deuren, wat zorgt voor veel lichtinval en een prettige verbinding tussen binnen en buiten.
Op de begane grond bevindt zich tevens de badkamer, praktisch ingedeeld met een douche, toilet en een wastafelmeubel. Het aanwezige raam zorgt voor prettig daglicht en natuurlijke ventilatie.
De woning is voorzien van houten kozijnen met dubbel glas, die in 2025 voor het laatst zijn geschilderd, wat bijdraagt aan het verzorgde onderhoudsniveau van de woning. Samen zorgt dit voor een comfortabele en lichte leefomgeving op de begane grond.
Eerste verdieping
Via de trap bereik je de overloop van de eerste verdieping. Hier valt direct op dat er praktische inbouwkasten aanwezig zijn, met daarin de aansluiting van de wasmachine, en ruimte voor linnengoed of andere spullen. Op de overloop bevindt zich tevens een separate toiletruimte.
De verdieping beschikt over twee slaapkamers, beide met een prettige lichtinval dankzij de aanwezige dakramen. De kamers hebben een sfeervolle uitstraling door de schuine dakvlakken en zijn afgewerkt met een lichte houtlook vloer, wat zorgt voor een ruimtelijk en verzorgd geheel. In een kamer is in de vast kast de cv-ketel opgesteld.
De grootste slaapkamer biedt voldoende ruimte voor een tweepersoonsbed en kasten en heeft een rustige, comfortabele sfeer. De tweede slaapkamer is eveneens goed van formaat en kan uitstekend dienen als slaapkamer, werkruimte of hobbykamer.
Door de slimme indeling, de aanwezige bergruimte op de overloop en de twee volwaardige kamers is deze verdieping praktisch en veelzijdig in gebruik.
Tuin
De woning beschikt over een ruime en fraai aangelegde achtertuin, door de grootte van de tuin en de ligging kun je hier al vroeg op de dag van de zon genieten. Met een perceel van circa 891 m² biedt de tuin volop ruimte, rust en privacy.
Direct aan de woning bevindt zich een ruim terras, een fijne plek om te zitten en te genieten van het buitenleven. Tevens staat aan de straatkant een vrijstaande stenen berging en is er een poort aanwezig, wat praktisch is voor het stallen van bijvoorbeeld fietsen of tuingereedschap en voor een handige achterom.
Verder is de tuin voorzien van een gezond gazon, fraaie dakplatanen die voor een karaktervolle uitstraling zorgen en een sfeervolle put, die is omgebouwd tot BBQ plaats, wat een charmant detail toevoegt aan het geheel. Dankzij de royale afmetingen en de groene inrichting is dit een heerlijke plek voor tuinliefhebbers, kinderen of gewoon om in alle rust van het buitenleven te genieten.
Omgeving
De woning ligt in het buitengebied van Haaren, aan de rustige Blazeveldweg, direct bij natuurgebied De Noenes. Dit gebied staat bekend om zijn bossen, zandpaden en groene landschappen en is een geliefde plek voor wandelaars, fietsers en natuurliefhebbers. Vanuit de woning wandel of fiets je zo de natuur in en ervaar je dagelijks het echte buitenleven.
Ondanks de rustige en groene ligging bevindt de woning zich op korte afstand van de dorpskern van Haaren, waar diverse voorzieningen zoals winkels, basisscholen en sportfaciliteiten te vinden zijn. Ook omliggende plaatsen zoals Oisterwijk, Vught en Boxtel zijn snel bereikbaar.
De bereikbaarheid is bovendien uitstekend. Binnen enkele minuten bereik je de uitvalswegen richting de A2 en A65, waardoor steden als ’s-Hertogenbosch, Tilburg en Eindhoven goed bereikbaar zijn. Ook het openbaar vervoer is in de omgeving aanwezig met busverbindingen naar omliggende dorpen en steden, terwijl de treinstations van Oisterwijk en Boxtel op korte afstand liggen. Hierdoor combineert deze locatie het rustige buitenleven met een goede bereikbaarheid van voorzieningen en steden.
Bijzonderheden;
- Vloerverwarming begane grond;
- Buitengebied van Haaren, de Noenes;
- Royaal perceel;
- Oplevering in overleg;
*NOTE
De gemeente heeft een wijziging van het huidige bestemmingsplan in procedure gebracht waarmee permanente bewoning wordt geformaliseerd en een verruiming van de bouwmogelijkheden tot 90m2 en480m3 inhoud en 7m bouwhoogte wordt mogelijk gemaakt.
FINANCIERING:
Hoewel de gemeente een bestemmingsplan in procedure heeft gebracht waarin de permanente bewoning op de Noenes wordt gelegaliseerd is de officiële huidige bestemming van de woning nog recreatief.
Zolang het nieuwe bestemmingsplan nog in procedure is en dus nog niet van kracht is, is het mogelijk dat de woning niet volledig middels een hypothecaire geldlening gefinancierd kan worden. Voor recreatiewoningen gelden immers andere financieringsregels. Wij adviseren u daarom voor een bezichtiging te onderzoeken of u deze woning zou kunnen financieren.
Kenmerken
Overdracht
- Vraagprijs
- € 595.000 k.k.
- Vraagprijs per m²
- € 7.438
- Aangeboden sinds
- 6 maart 2026
- Status
- Beschikbaar
- Aanvaarding
- In overleg
Bouw
- Soort woning
- Woonhuis
- Bouwjaar
- 2002
- Soort dak
- Schilddak
Oppervlakten en inhoud
- Oppervlakte wonen
- 80 m²
- Oppervlakte externe bergruimte
- 9 m²
- Perceel
- 891 m²
- Inhoud
- 291 m³
Indeling
- Aantal kamers
- 3
- Aantal slaapkamers
- 2
- Aantal badkamers
- 1
- Badkamervoorzieningen
- Toilet, douche en wastafel
- Aantal woonlagen
- 2 woonlagen
- Voorzieningen
- Mechanische ventilatie, tv-kabel en glasvezel kabel
Energie
- Energielabel
- C
- Isolatie
- Dakisolatie, muurisolatie, vloerisolatie en dubbel glas
- Verwarming
- Cv-ketel en vloerverwarming geheel
- Warm water
- Cv-ketel
- Cv-ketel
- NEFIT ECOMLINE HR (combiketel uit 2004)
Buitenruimte
- Tuin
- Achtertuin, voortuin, zijtuin en tuin rondom
- Achtertuin
- 480 m² gelegen op het zuidoosten met achterom
Bergruimte
- Schuur/berging
- Vrijstaand steen
Garage
- Soort garage
- Carport en geen garage