- 132 m²
- 237 m²
- 3
- B
Omschrijving
Op loopafstand van het centrum van Drunen ligt deze aantrekkelijke twee-onder-een-kapwoning met eigen oprit, mogelijkheid voor vier slaapkamers en heerlijke tuin op het westen. De woning is gedeeltelijk voorzien van nieuwe kunststof kozijnen met HR++ glas en beschikt over maar liefst drie slaapkamers en twee badkamers. Dankzij de cv-ketel uit 2024 en acht zonnepanelen heeft de woning energielabel B. Binnen ervaar je een prettige lichtinval en een fijne, praktische indeling. De combinatie van ruimte, comfort en duurzaamheid maakt dit een ideale gezinswoning. De royale tuin en multifunctionele tweede verdieping bieden bovendien volop mogelijkheden. Hier woon je rustig, maar toch dichtbij alle voorzieningen. Een instapklare woning waar je je direct thuis voelt.
INDELING
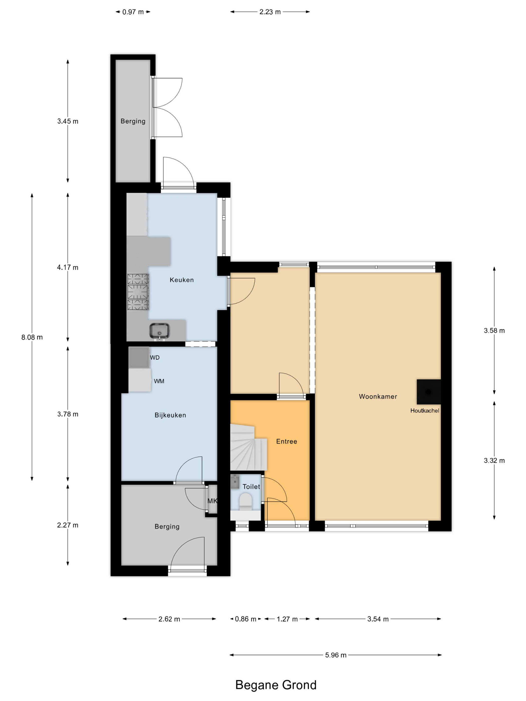
Begane grond
Parkeer de auto op je eigen oprit en betreed de woning via de voordeur. We komen binnen in de entreehal die toegang biedt tot het toilet, de trapopgang en de woonkamer. De woonkamer is heerlijk ruim en biedt aan de voorzijde plaats voor een gezellige zithoek. De kachel zorgt voor extra sfeer en dankzij de grote ramen voelt het huis enorm licht aan. Aan de achterzijde is ruimte voor een grote eettafel, waarbij je via de schuifpui binnen en buiten moeiteloos met elkaar verbindt. De woonkamer is bovendien voorzien van airconditioning voor extra comfort. Vanuit hier betreden we de keuken uit 2012, uitgerust met twee koelkasten, een vriezer, oven, magnetron, vaatwasser en wijnkoelkast. De keuken biedt toegang tot de achtertuin én tot de bijkeuken met wasmachine- en drogeraansluiting, vaste kastenwand en doorgang naar de berging met toegang tot de oprit, ideaal voor het stallen van fietsen.
Eerste verdieping
Via de trapopgang in de entreehal bereiken we de overloop. De overloop biedt toegang tot twee slaapkamers en twee badkamers. De hoofdslaapkamer is royaal en groot genoeg voor een tweepersoonsbed en beschikt over een ruime inbouwkledingkast. Vanuit deze kamer stap je direct de badkamer binnen. Deze badkamer is voorzien van een ligbad, inloopdouche en wastafel met meubel. De tweede slaapkamer is ideaal als kinderkamer, logeerkamer of thuiskantoor. De tweede badkamer is perfect voor thuiswonende kinderen of gasten. Deze beschikt over een toilet, douche en wastafel. Een comfortabele verdieping met veel privacy en gebruiksgemak.
Tweede verdieping
De tweede verdieping is bereikbaar via een vaste trap. Op de overloop vinden we de opstelplaats van de cv-ketel uit 2024 en extra bergruimte. Daarnaast is hier toegang tot een ruime derde slaapkamer. Deze kamer is groot genoeg voor een tweepersoonsbed, bureau en kledingkast en daarmee ideaal voor een thuiswonende tiener. Dankzij de twee grote dakkapellen aan weerszijden is de ruimte bijzonder licht en royaal. De opzet maakt het zelfs mogelijk om hier twee kamers te realiseren. Een multifunctionele verdieping met volop potentie.
TUIN
De achtertuin is lekker ruim, circa 12 meter diep en 9,5 meter breed, en gelegen op het westen. Hierdoor geniet je volop van het middag- en avondzonnetje. Er is ruimte voor meerdere zitgedeeltes, zodat je altijd een fijne plek in de zon of schaduw kunt creëren. Of je nu wilt tuinieren, ontspannen of de kinderen wilt laten spelen, hier kan het allemaal. De tuin biedt voldoende privacy en mogelijkheden om deze naar eigen wens in te richten. In tuin bevindt zich nog een praktische berging. Ideaal voor het opslaan van tuinspullen en gereedschap. Een heerlijke buitenruimte waar je optimaal kunt genieten.
LOCATIE
Deze woning ligt op een fijne locatie op loopafstand van het centrum van Drunen. Hier vind je diverse winkels, supermarkten, horeca en andere dagelijkse voorzieningen binnen handbereik. Ook scholen, sportvoorzieningen en openbaar vervoer zijn in de directe omgeving aanwezig. De ligging combineert het gemak van het dorpscentrum met een rustige woonomgeving. Daarnaast zijn uitvalswegen richting omliggende steden zoals Den Bosch en Waalwijk eenvoudig bereikbaar. Voor wandel- en fietsliefhebbers zijn de Loonse en Drunense Duinen op korte afstand. Een ideale plek voor wie comfortabel en centraal wil wonen.
- Op loopafstand van het centrum van Drunen;
- Twee-onder-een-kap met eigen oprit;
- Gedeeltelijk voorzien nieuwe kunststof kozijnen met HR++ glas;
- Energielabel B;
- Cv-ketel uit 2024;
- 8 zonnepanelen;
- Drie volwaardige slaapkamers;
- Twee badkamers;
- Airco in woonkamer;
- Schuifpui naar de achtertuin;
- Keuken uit 2012 met complete inbouwapparatuur;
- Tweede verdieping met dakkapellen aan weerszijde;
Toon meer
INDELING
Begane grond
Parkeer de auto op je eigen oprit en betreed de woning via de voordeur. We komen binnen in de entreehal die toegang biedt tot het toilet, de trapopgang en de woonkamer. De woonkamer is heerlijk ruim en biedt aan de voorzijde plaats voor een gezellige zithoek. De kachel zorgt voor extra sfeer en dankzij de grote ramen voelt het huis enorm licht aan. Aan de achterzijde is ruimte voor een grote eettafel, waarbij je via de schuifpui binnen en buiten moeiteloos met elkaar verbindt. De woonkamer is bovendien voorzien van airconditioning voor extra comfort. Vanuit hier betreden we de keuken uit 2012, uitgerust met twee koelkasten, een vriezer, oven, magnetron, vaatwasser en wijnkoelkast. De keuken biedt toegang tot de achtertuin én tot de bijkeuken met wasmachine- en drogeraansluiting, vaste kastenwand en doorgang naar de berging met toegang tot de oprit, ideaal voor het stallen van fietsen.
Eerste verdieping
Via de trapopgang in de entreehal bereiken we de overloop. De overloop biedt toegang tot twee slaapkamers en twee badkamers. De hoofdslaapkamer is royaal en groot genoeg voor een tweepersoonsbed en beschikt over een ruime inbouwkledingkast. Vanuit deze kamer stap je direct de badkamer binnen. Deze badkamer is voorzien van een ligbad, inloopdouche en wastafel met meubel. De tweede slaapkamer is ideaal als kinderkamer, logeerkamer of thuiskantoor. De tweede badkamer is perfect voor thuiswonende kinderen of gasten. Deze beschikt over een toilet, douche en wastafel. Een comfortabele verdieping met veel privacy en gebruiksgemak.
Tweede verdieping
De tweede verdieping is bereikbaar via een vaste trap. Op de overloop vinden we de opstelplaats van de cv-ketel uit 2024 en extra bergruimte. Daarnaast is hier toegang tot een ruime derde slaapkamer. Deze kamer is groot genoeg voor een tweepersoonsbed, bureau en kledingkast en daarmee ideaal voor een thuiswonende tiener. Dankzij de twee grote dakkapellen aan weerszijden is de ruimte bijzonder licht en royaal. De opzet maakt het zelfs mogelijk om hier twee kamers te realiseren. Een multifunctionele verdieping met volop potentie.
TUIN
De achtertuin is lekker ruim, circa 12 meter diep en 9,5 meter breed, en gelegen op het westen. Hierdoor geniet je volop van het middag- en avondzonnetje. Er is ruimte voor meerdere zitgedeeltes, zodat je altijd een fijne plek in de zon of schaduw kunt creëren. Of je nu wilt tuinieren, ontspannen of de kinderen wilt laten spelen, hier kan het allemaal. De tuin biedt voldoende privacy en mogelijkheden om deze naar eigen wens in te richten. In tuin bevindt zich nog een praktische berging. Ideaal voor het opslaan van tuinspullen en gereedschap. Een heerlijke buitenruimte waar je optimaal kunt genieten.
LOCATIE
Deze woning ligt op een fijne locatie op loopafstand van het centrum van Drunen. Hier vind je diverse winkels, supermarkten, horeca en andere dagelijkse voorzieningen binnen handbereik. Ook scholen, sportvoorzieningen en openbaar vervoer zijn in de directe omgeving aanwezig. De ligging combineert het gemak van het dorpscentrum met een rustige woonomgeving. Daarnaast zijn uitvalswegen richting omliggende steden zoals Den Bosch en Waalwijk eenvoudig bereikbaar. Voor wandel- en fietsliefhebbers zijn de Loonse en Drunense Duinen op korte afstand. Een ideale plek voor wie comfortabel en centraal wil wonen.
- Op loopafstand van het centrum van Drunen;
- Twee-onder-een-kap met eigen oprit;
- Gedeeltelijk voorzien nieuwe kunststof kozijnen met HR++ glas;
- Energielabel B;
- Cv-ketel uit 2024;
- 8 zonnepanelen;
- Drie volwaardige slaapkamers;
- Twee badkamers;
- Airco in woonkamer;
- Schuifpui naar de achtertuin;
- Keuken uit 2012 met complete inbouwapparatuur;
- Tweede verdieping met dakkapellen aan weerszijde;
Kenmerken
Overdracht
- Vraagprijs
- € 550.000 k.k.
- Vraagprijs per m²
- € 4.167
- Aangeboden sinds
- 24 februari 2026
- Status
- Beschikbaar
- Aanvaarding
- In overleg
Bouw
- Soort woning
- Woonhuis
- Bouwjaar
- 1972
- Soort dak
- Zadeldak
Oppervlakten en inhoud
- Oppervlakte wonen
- 132 m²
- Oppervlakte overige inpandige ruimte
- 9 m²
- Perceel
- 237 m²
- Inhoud
- 493 m³
Indeling
- Aantal kamers
- 4
- Aantal slaapkamers
- 3
- Aantal badkamers
- 2
- Badkamervoorzieningen
- Ligbad, wastafel, wastafelmeubel, inloopdouche, vloerverwarming, toilet en douche
- Aantal woonlagen
- 3 woonlagen
- Voorzieningen
- Rolluiken, tv-kabel, buitenzonwering, airconditioning, rookkanaal, schuifpui, dakraam, glasvezel kabel, zonnepanelen en natuurlijke ventilatie
Energie
- Energielabel
- B
- Isolatie
- Muurisolatie
- Verwarming
- Cv-ketel
- Warm water
- Cv-ketel
- Cv-ketel
- Intergas (combiketel uit 2024)
Buitenruimte
- Ligging
- Aan rustige weg, in woonwijk en in bosrijke omgeving
- Tuin
- Achtertuin en voortuin
- Achtertuin
- 117 m² gelegen op het westen
Bergruimte
- Schuur/berging
- Aangebouwd steen
Garage
- Soort garage
- Geen garage